







Myydään liiketilat - Hankasalmi
Liikekiinteistö Hankasalmi kk, Keskustie 34, 41500 Hankasalmi #10826209
Hankasalmen kirkonkylän taajamassa myytävänä entinen kauppakiinteistö
Osoite
Keskustie 34, 41500 Hankasalmi
Tilatyyppi
Liiketilaa
819 m2
Muuta
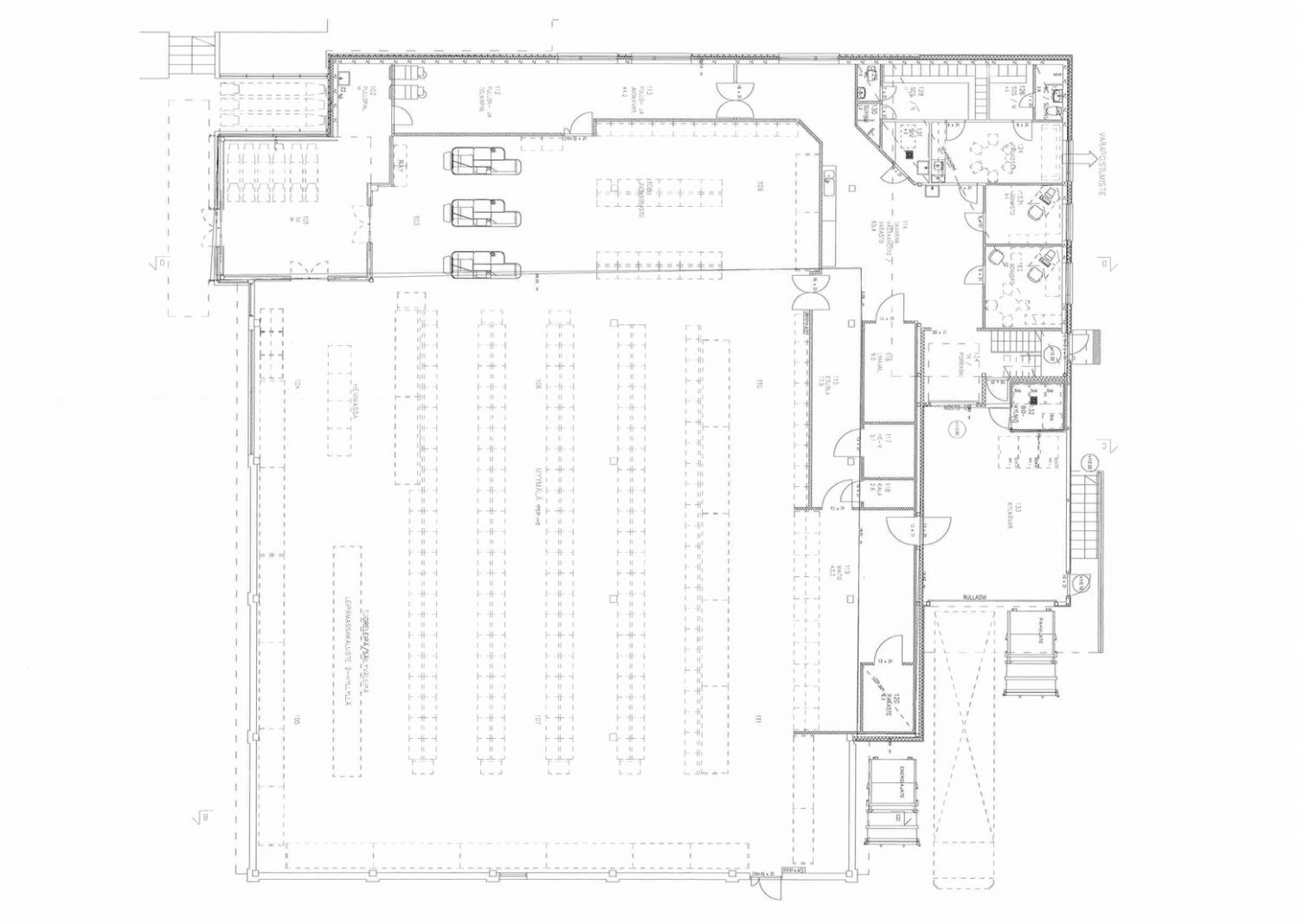
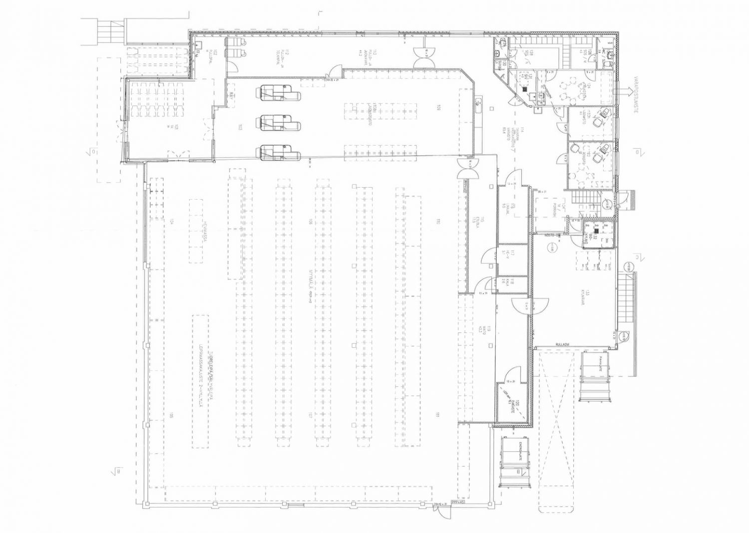
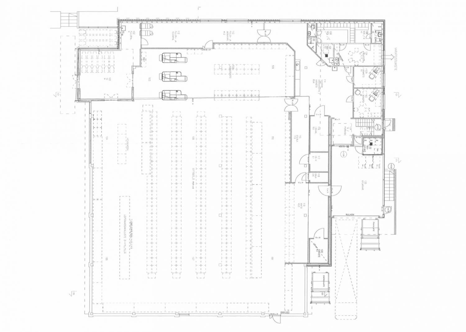
Hankasalmen Kirkonkylällä myytävänä 80-luvulla rakennettu n. 820 m2 kauppakiinteistö, jossa on toiminut aikoinaan S-Market. Kiinteistössä on avaraa ja yhtenäistä tilaa, takaosassa sijaitsevat toimisto-, sosiaali- ja varastotilat sekä lastausalue. Kiinteistöllä asfaltoitu ja tasainen piha-alue. Tontin pinta-ala 2 585 m2. Yhteydet mm. valtatie 9/E63 n. 10 km. Kirkonkylältä Jyväskylään matkaa n. 55 km, Kuopioon n. 100 km. Lisätietoja kaavoituksesta: https://hankasalmi.fi/asuminen-ja-ymparisto/kaavoitus
Ota yhteyttä lisätietoja varten!
Mh. 80.000,00 euroa.
Ota yhteyttä lisätietoja varten!
Mh. 80.000,00 euroa.
Vapautuu
Kysy
Rakennusvuosi
1984
Kerros
1
Ota yhteyttä
Pyydä lisätietoa
