








Vuokrataan liiketilat - Jyväskylä
Keskustie 18, Keskusta, 40100 Jyväskylä #10820783
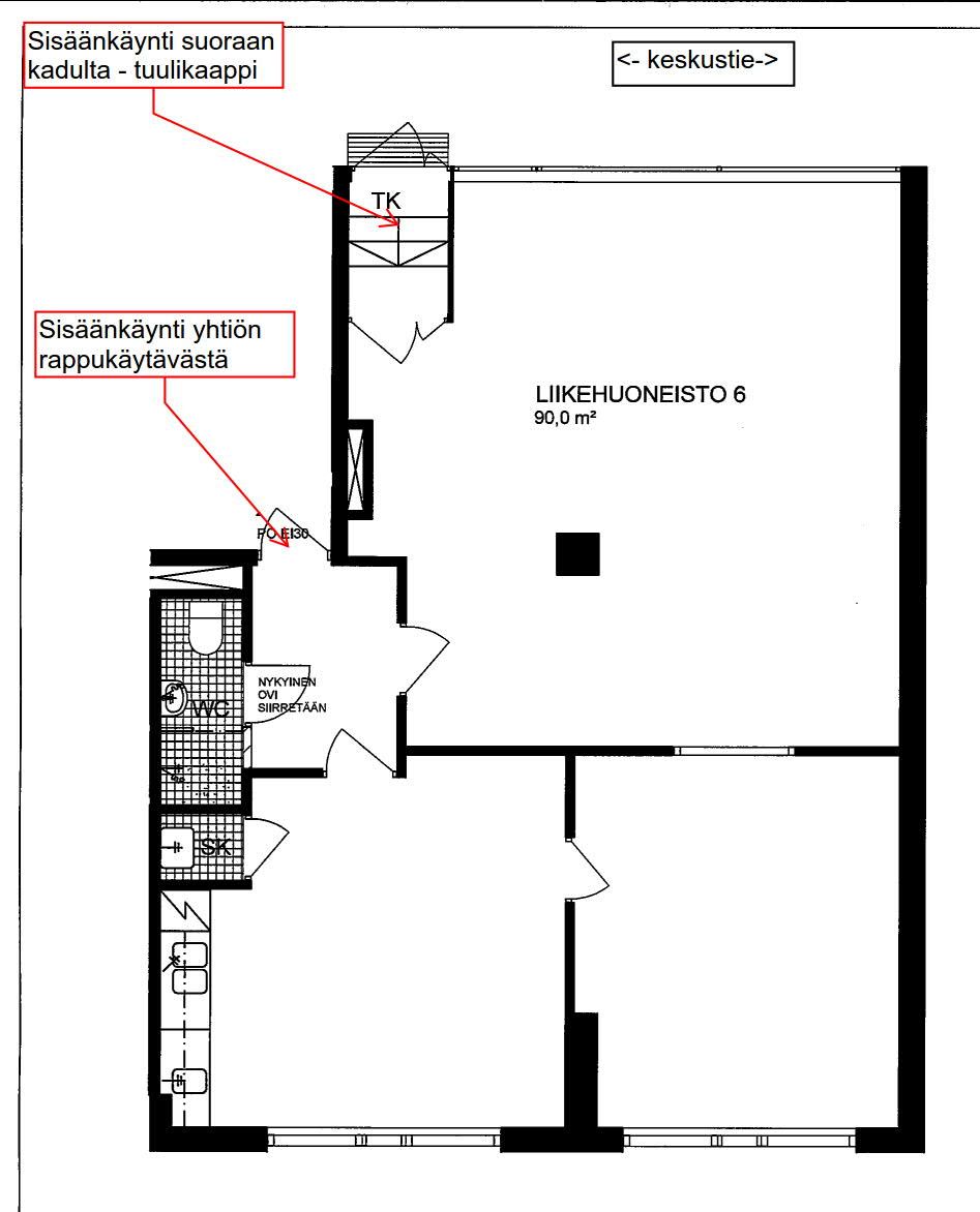
Vuokrataan katutason liike-/toimistotilaa Jyväkylän keskustasta
Osoite
Keskustie 18, 40100 Jyväskylä
Tilatyyppi
Liiketilaa
90,5 m2
Muuta
Vuokrataan 90,5 neliöinen liiketila Jyväskylän keskustasta Keskustieltä. Tila sopii mm. liike- ja toimistotilaksi. Oma keittiö ja wc. Heti vapaa tila. Soita ja sovi esittely!
Vapautuu
Kysy
Kerros
1
Ota yhteyttä
Pyydä lisätietoa
