

Vuokrataan varastotilat - Jyväskylä
Ilmarisenkatu 13-15, 40100 Jyväskylä #10801475
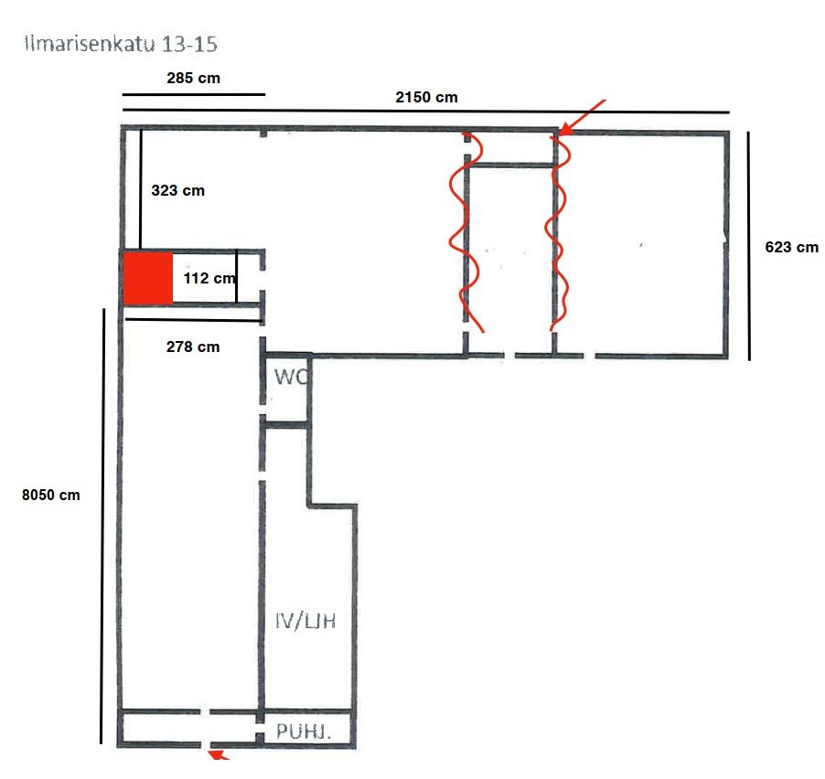
Vuokrataan varastotilaa Jyväskylän keskustasta
Osoite
Ilmarisenkatu 13-15, 40100 Jyväskylä
Tilatyyppi
Varastotilaa
170 m2
Muuta
170 m2 varastotilaa vuokrattavana keskustan läheisyydessä, Ilmarisenkadulla.
Ota yhteyttä lisätietoja varten!
Ota yhteyttä lisätietoja varten!
Vapautuu
Kysy
Ota yhteyttä
Pyydä lisätietoa
