










Vuokrataan toimistotilat - Jyväskylä
Heikinkatu 3, Keskusta, 40100 Jyväskylä #10767205
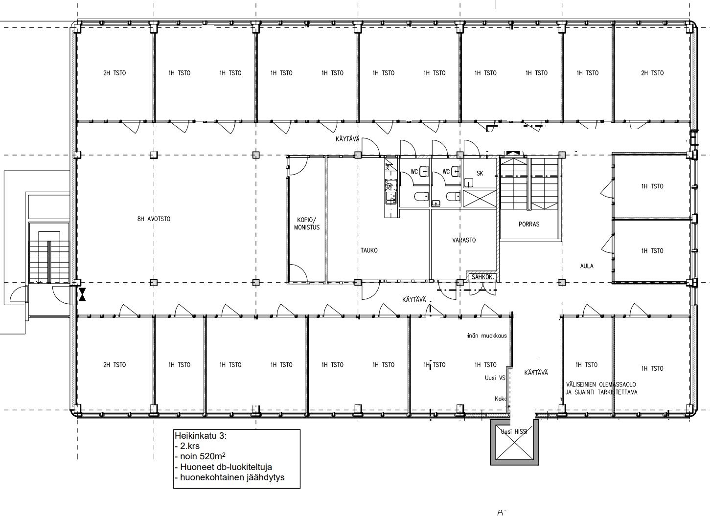
Vuokrataan 520 m2 toimistotilaa keskustan läheisyydestä
Osoite
Heikinkatu 3, 40100 Jyväskylä
Tilatyyppi
Toimistotilaa
520 m2
Muuta
Heti vapaata erittäin siistiä ja jäähdytettyä toimistotilaa keskeisellä paikalla. Vain parin minuutin kävelymatkan päästä ydinkeskustasta! Erinomainen saavutettavuus kulkuneuvosta riippumatta. Etäisyys Matkakeskukselle (juna/kaukoliikenne) ja ydinkeskustaan noin 500 m. Valtateiden VT9 ja VT4 liittymät noin 2min ajomatkan päässä. Paikallisliikenteen linja-autopysäkki rakennuksen edessä. Hyvät paikoitus mahdollisuudet. Toimistokokonaisuuden pinta-ala on 2. kerroksessa 520 m2. Huoneet on äänieristettyjä. Esteetön kulku kerroksiin hissillä. Kerrosten välillä myös portaikot. Kerroksessa omat keittiö- ja sos. tilat. Pääosin toimistohuoneita omalla huonekohtaisella jäähdytyksellä. Ota yhteyttä näyttöä varten!
Vapautuu
01.06.2021
Kerros
2
Ota yhteyttä
Infonia Oy
Kauppakatu 18 A 40100 Jyväskylä
Mikko Hirvi
Näytä puhelinnumero +358 407579731
Pyydä lisätietoa
