Ota yhteyttä

Vuokrataan toimistotilat - Jyväskylä

Toimisto, Kauppakatu 16, 40100 Jyväskylä #10821458

Tyylikäs toimistotila arvokiinteistön katutasossa

Osoite
Kauppakatu 16, 40100 Jyväskylä
Tilatyyppi
Toimistotilaa
450 m2
Muuta
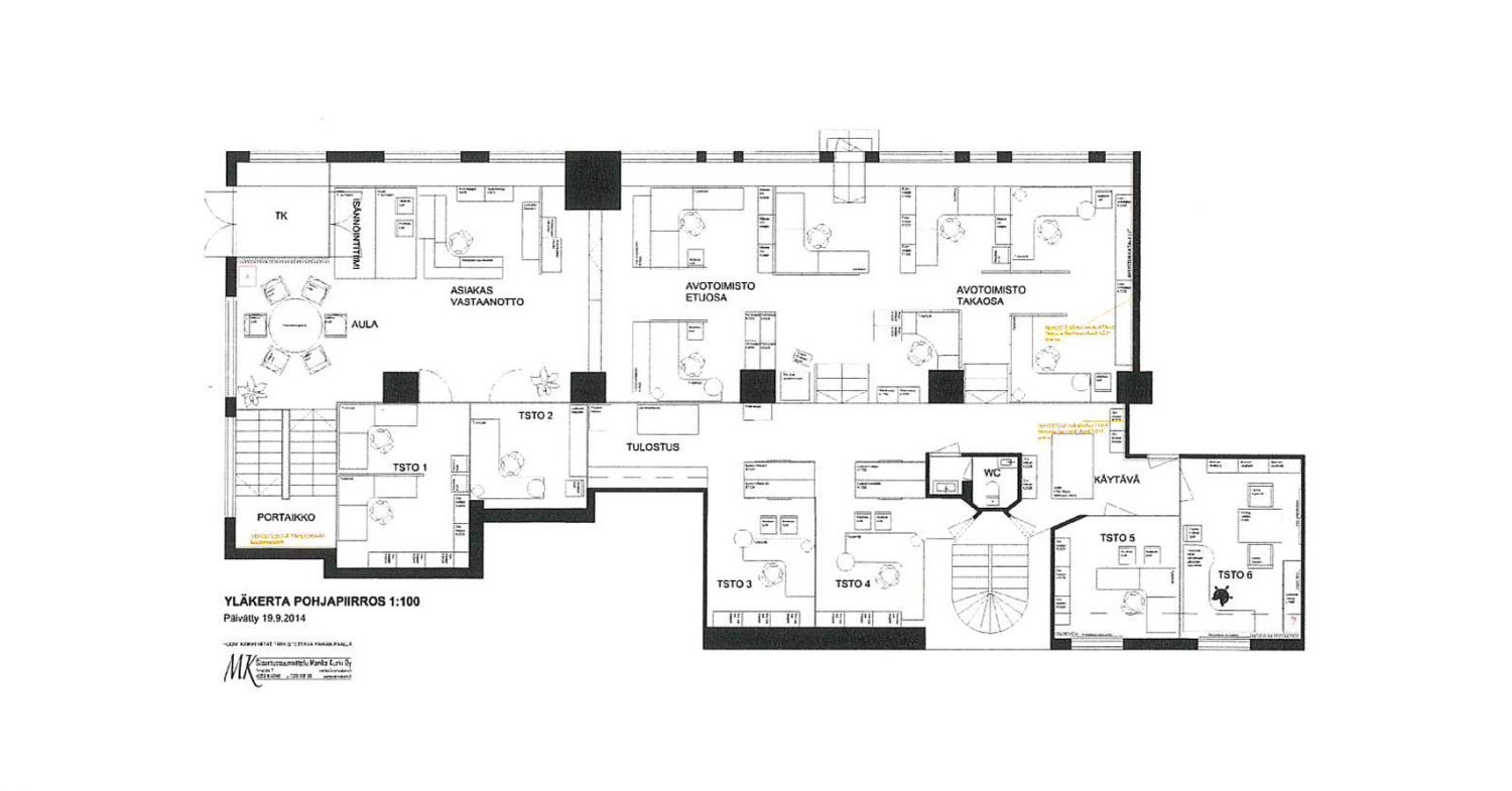
Vuokrataan katutason toimistotila Kauppakadun ja Gummeruksenkadun kulmauksesta, vehreän Kirkkopuiston laidalta. Upeat kaari-ikkunat tuovat toimistoon ripauksen vanhan ajan henkeä. Valoisa, porrastettu avotoimistotila ja tyylikkäät pohjakerroksen neuvottelu- sekä sosiaalitilat sopivat monenlaiseen toimistokäyttöön. Tila vapautuu 7/2025. Soita ja kysy lisätietoja!
Vapautuu
Kysy
Kerros
1
Ota yhteyttä

Infonia Oy

Kauppakatu 18 A 40100 Jyväskylä

  https://infonia.fi
Pyydä lisätietoa

Kohteesta Kauppakatu 16, Jyväskylä

 
customer-img-110
customer-img-119
customer-img-120
customer-img-121
customer-img-122
customer-img-123
customer-img-125
customer-img-126