


Myydään tuotantotilat - Jyväskylä
Kirrintie 11, Kirri, 40270 Jyväskylä #10771112
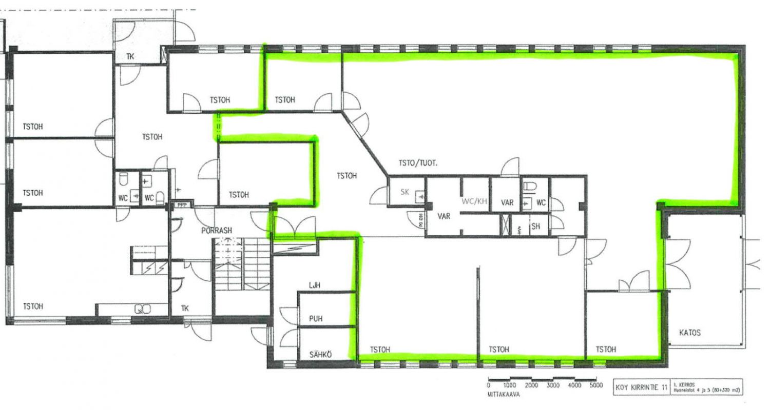
Siisti 277 m2 toimisto/kevyttuotantotila Kirristä!
Osoite
Kirrintie 11, 40270 Jyväskylä
Tilatyyppi
Tuotantotilaa
277 m2
Tilajako
Jaettavissa
Muuta
Myydään erittäin siisti toimisto/työtila jäähdytyksellä Kirristä!
Tila on erittäin hyväkuntoinen ja tilakokonaisuuden toimisto-osa on pintaremontoitu hiljattain näyttävästi. Toinen puoli tilasta soveltuu kevyeen tuotantoon tai avotilaksi. Tila on helppo jakaa, sillä siinä on useampi käyntiovi sekä työtilakäyttöön sopiva leveä pariovi.
Kokonaisuuteen sisältyy erillinen neuvottelu-/taukotilakokonaisuus jossa on oma keittiö ja iso valoisa tila neuvottelupöydälle. Pihassa on runsaasti autopaikkoja ja kohde sijaitsee keskeisellä Kirrin liikekeskuksessa. Palokan keskukseen ajaa muutamassa minuutissa.
Tila on erittäin hyväkuntoinen ja tilakokonaisuuden toimisto-osa on pintaremontoitu hiljattain näyttävästi. Toinen puoli tilasta soveltuu kevyeen tuotantoon tai avotilaksi. Tila on helppo jakaa, sillä siinä on useampi käyntiovi sekä työtilakäyttöön sopiva leveä pariovi.
Kokonaisuuteen sisältyy erillinen neuvottelu-/taukotilakokonaisuus jossa on oma keittiö ja iso valoisa tila neuvottelupöydälle. Pihassa on runsaasti autopaikkoja ja kohde sijaitsee keskeisellä Kirrin liikekeskuksessa. Palokan keskukseen ajaa muutamassa minuutissa.
Vapautuu
Kysy
Kerros
1
Jaettavissa
Ota yhteyttä
Pyydä lisätietoa
